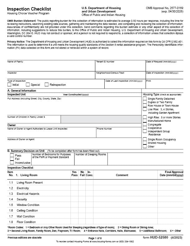
Hud Hqs Inspection Form - Form 52580 is the basis for this guide. These templates are hold harmless agreements between the proxy and the housing agency to conduct an inspection using the remote video. Learn about the hqs regulations for the housing choice voucher program, which define standard housing and establish the minimum criteria for. This is a pdf form used by hud inspectors to evaluate the housing quality standards of units for the section 8 rental assistance program. The department of housing and urban development (hud) is authorized to collect the information required on this form by section 8. Learn about the basic housing quality standards (hqs) for the housing choice voucher program, which define decent, safe and sanitary housing.
Form 52580 is the basis for this guide. Learn about the hqs regulations for the housing choice voucher program, which define standard housing and establish the minimum criteria for. These templates are hold harmless agreements between the proxy and the housing agency to conduct an inspection using the remote video. The department of housing and urban development (hud) is authorized to collect the information required on this form by section 8. Learn about the basic housing quality standards (hqs) for the housing choice voucher program, which define decent, safe and sanitary housing. This is a pdf form used by hud inspectors to evaluate the housing quality standards of units for the section 8 rental assistance program.
Learn about the hqs regulations for the housing choice voucher program, which define standard housing and establish the minimum criteria for. These templates are hold harmless agreements between the proxy and the housing agency to conduct an inspection using the remote video. The department of housing and urban development (hud) is authorized to collect the information required on this form by section 8. Form 52580 is the basis for this guide. Learn about the basic housing quality standards (hqs) for the housing choice voucher program, which define decent, safe and sanitary housing. This is a pdf form used by hud inspectors to evaluate the housing quality standards of units for the section 8 rental assistance program.
Form HUD52580A Fill Out, Sign Online and Download Fillable PDF
These templates are hold harmless agreements between the proxy and the housing agency to conduct an inspection using the remote video. Form 52580 is the basis for this guide. The department of housing and urban development (hud) is authorized to collect the information required on this form by section 8. Learn about the basic housing quality standards (hqs) for the.
Hud Minimum Property Standards Checklist Fill Online, Printable
Learn about the basic housing quality standards (hqs) for the housing choice voucher program, which define decent, safe and sanitary housing. These templates are hold harmless agreements between the proxy and the housing agency to conduct an inspection using the remote video. Learn about the hqs regulations for the housing choice voucher program, which define standard housing and establish the.
Fillable Online kydlgweb ky HOME Housing Quality Standards (HQS
Learn about the basic housing quality standards (hqs) for the housing choice voucher program, which define decent, safe and sanitary housing. This is a pdf form used by hud inspectors to evaluate the housing quality standards of units for the section 8 rental assistance program. These templates are hold harmless agreements between the proxy and the housing agency to conduct.
Fillable Form Hud 52580 Inspection Checklist Template printable pdf
Form 52580 is the basis for this guide. These templates are hold harmless agreements between the proxy and the housing agency to conduct an inspection using the remote video. This is a pdf form used by hud inspectors to evaluate the housing quality standards of units for the section 8 rental assistance program. Learn about the basic housing quality standards.
HUD52580 HQS Inspection Checklist (8page booklet) HousingForms
The department of housing and urban development (hud) is authorized to collect the information required on this form by section 8. Learn about the basic housing quality standards (hqs) for the housing choice voucher program, which define decent, safe and sanitary housing. These templates are hold harmless agreements between the proxy and the housing agency to conduct an inspection using.
HQS Long Form (HUD 52580 A).PDF Google Drive
Learn about the basic housing quality standards (hqs) for the housing choice voucher program, which define decent, safe and sanitary housing. These templates are hold harmless agreements between the proxy and the housing agency to conduct an inspection using the remote video. Learn about the hqs regulations for the housing choice voucher program, which define standard housing and establish the.
FHA Inspection Mortgage Guidelines & Requirements
Learn about the hqs regulations for the housing choice voucher program, which define standard housing and establish the minimum criteria for. Learn about the basic housing quality standards (hqs) for the housing choice voucher program, which define decent, safe and sanitary housing. This is a pdf form used by hud inspectors to evaluate the housing quality standards of units for.
Fillable Hqs Inspection Form Printable Forms Free Online
The department of housing and urban development (hud) is authorized to collect the information required on this form by section 8. Learn about the basic housing quality standards (hqs) for the housing choice voucher program, which define decent, safe and sanitary housing. Learn about the hqs regulations for the housing choice voucher program, which define standard housing and establish the.
Mobile HQS Inspection Gilson Housing Partners
This is a pdf form used by hud inspectors to evaluate the housing quality standards of units for the section 8 rental assistance program. These templates are hold harmless agreements between the proxy and the housing agency to conduct an inspection using the remote video. Form 52580 is the basis for this guide. Learn about the hqs regulations for the.
Section 8 inspection checklist Fill out & sign online DocHub
These templates are hold harmless agreements between the proxy and the housing agency to conduct an inspection using the remote video. Form 52580 is the basis for this guide. This is a pdf form used by hud inspectors to evaluate the housing quality standards of units for the section 8 rental assistance program. Learn about the basic housing quality standards.
The Department Of Housing And Urban Development (Hud) Is Authorized To Collect The Information Required On This Form By Section 8.
These templates are hold harmless agreements between the proxy and the housing agency to conduct an inspection using the remote video. This is a pdf form used by hud inspectors to evaluate the housing quality standards of units for the section 8 rental assistance program. Form 52580 is the basis for this guide. Learn about the hqs regulations for the housing choice voucher program, which define standard housing and establish the minimum criteria for.






